Civic Quarter, Canberra NSW
Canberra's Civic Quarter, situated at 68 Northbourne Avenue, is an interconnected work precinct in the centre of it all, Australia's Capital Territory.
)
The situation
Canberra’s Civic Quarter, situated at 68 Northbourne Avenue, is an interconnected work precinct in the centre of it all, Australia’s capital territory.
This state-of-the-art commercial office building was purposely designed to be Canberra’s leading sustainable corporate destination and Canberra’s workplace of the future. CQ’s striking architecture, business-class facilities, services and leading sustainability principles, make it the Capital’s premier office address.
Civic Quarter, Canberra
Rope Access, General Access, Fall Arrest, Fall Protection, Guardrails, Walkways, Rigid Rails, Davit Systems, Needle Systems
Solution
Suresafe Height Safety Solutions partnered with Kattsafe to install both internal and external working at height system configurations, incorporating a product spend of $200,000, with the over-arching budget for the building’s construction sitting at $54M.
The most significant thing about this project for Kattsafe was the extensive application for our rigid rail and rolling davits for façade access and maintenance.
It was a relatively complex and difficult install due to the need to accommodate for the numerous solar panels on the roof of the building. With solar being the cost effective and environmentally friendly option, the requirement for both solar and fall protection sectors to work cohesively, is becoming increasing evident.
This project played out in two stages, with Stage 1 commencing in 2019 and Stage 2 being completed in recent months. Stage 2 involved input from Kattsafe’s Customer Service Team, working in with Suresafe Height Safety Solutions to design the atrium abseil layout plan and quote on the required façade access systems.
During the initial stage of the project Kattsafe's Design Team were called in to assist with a customised solution which covered all aspects of worker safety. Due to the heavy maintenance requirements needed on a building with large glass facades and an intricate solar panel installation, personnel had to be provided with user friendly, easy to operate systems.
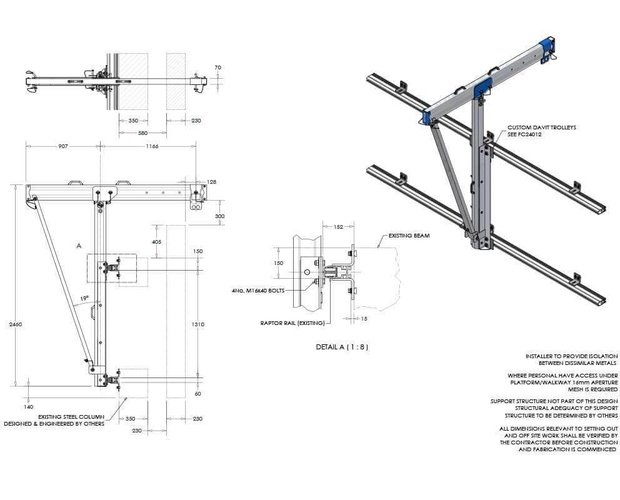
Stage 2 involved collaboration with the Customer Service Team who produced detailed drawings of the rolling davit system to assist with production and installation.
)
Rolling davit
The project features rigid rails in the building's atrium, needles and rolling davits for facade access and maintenance, platforms, rung ladders and step ladders, for safe access in and around the building, as well as guardrail and walkway systems for safe access on and around the building's roof. Additionally, fold down ladders were installed to provide internal roof access.
Particularly pleasing to the client was the subtle, almost invisible, provision of the rope access davits and rigid rail.
)
)
)
)
)
)
)
)
)
)
)
)
)